Siel- und Straßenbauarbeiten im Hafen von Tönning



- Verlegung von Regenwasser-Entwässerungsleitungen (DN 160 / DN 200)
- Einbau von Entwässerungseinrichtungen/Straßentrummen
- Verlegung von Betonmuldensteinen
- Wiederherstellung der Natursteinpflasterdecke



Neubau eines Logistikzentrums in Hamburg-Billbrook



*Grundleitungsherstellung,*Einbringung von Leerrohren, *Fundament-Aushub, *Fundament-Anfüllarbeiten,*Erdbauarbeiten, * Feinplanum Sohle









Projekt: Langenhorn

Rodungs-/Fäll- und Baumschutzmaßnahmen (u.a.) Kronenschnitt, Wurzelschutzvorhang etc.)
zur Vorbereitung und Errichtung von ges. ca. 475 Neubauwohnungen.






Projekt: Wandsbeker Zollstraße

Erdarbeiten mit Großgeräten






- 300 m³ Boden ausgekoffert und abgefahren
- 125 m Betonrasensteine gesetzt
- 15 m Winkelstützwände gesetzt
- 300 m² Pflasterflächen gelegt
- 90 m² Sandkiste mit Sitz-Holzauflage versehen
- 6 Stck Müllbehälter montiert
- 120 Stck Rotbuchenhecke gesetzt
- 5 Stck Bäume eingepflanzt
- 550 Stck Stauden gesetzt
- 200 m² Vegetationsfläche angelegt

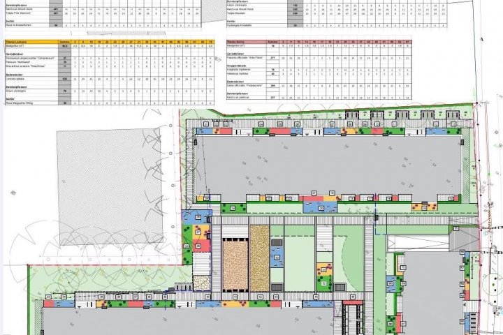
Projekt: Hamburg Schnelsen

technischer Lageplan

Wohnanlage während der Bauphase

Einsatz von Großgeräten

Dachbegrünung/Entwässerungsarbeiten

Anlagen-Pflanzplan




Auszug über bewegte Massen und
verbauter Materialien:
- 200 m³ Füllsand
- 16 Stück Winkelstützwände
- 630 m Betonrasenkanten
- 980 m² Betonsteinpflaster
- 145 m² Terrassenplatten verlegt
- 2 Stück Sandkisten mit Holzumrandung erstellt
- 1.000 m² Rasenflächen hergestellt
- 2.550 Stück Heckenpflanzen eingepflanzt
- 5.000 Stück Stauden eingepflanzt
- 19 Stück hochstämmige Bäume gepflanzt
- 17 Stück Müllschränke aufgestellt
- 42 Stück Fahrradanlehnbügel eingebaut
- 500 m² Vegetationsflächen auf einer Tiefgarage angelegt
Projekt: Rothenburgsort / Entwässerungsarbeiten an einer Industriehalle




- Verlegungen von ca. 135 m DN 400 Entwässerungsleitungen
- Verlegungen von ca. 135 m DN 300 Entwässerungsleitungen
- Verlegungen von ca. 70 m DN 150 Entwässerungsleitungen
- Einbau von Betonhaverieschächten DN 1500 mit elektrischen Motorschiebern
- Einbau von diversen Betonkontrollschächten DN 1000 bis ca. 3,50 m Tiefe
- Einbau von Sedimentationsanlagen zur Behandlung von anfallendem Regenwasser auf den Verkehrsflächen
Projekt: Hamburg-Ohlstedt
Erneuerung der Terrassenflächen und Zuwegungen eines Sportparks


